PG电子(中国)官方网站-见证传奇诞生

Pg电子网站:线个纯新盘-PG电子官方网站
PG电子(中国)官方网站-见证广安房地产传奇

咨询热线:

023-67087896

Pg电子网站:线个纯新盘

发布时间:2025-11-23 12:13人气:

  中海今年在北京的项目很多,丰台三盘超百亿的拿地金额,非常熟悉的北辛安,热门的朱辛庄,可谓是全面开花。

  ,北侧两层,南侧一层,面积预估在500平。这要是合院产品,那一套不得奔着5000万去了。

Pg电子网站:线个纯新盘(图1)

  东侧一共约412套房,小区地上建筑面积是87060㎡,减去东侧3栋约1500㎡,也就是85560㎡。

Pg电子网站:线个纯新盘(图2)

  Pg电子官方网站 Pg电子娱乐

  算下来户型套均面积208㎡,按照指导价9.2万算,套均总价1913万。

Pg电子网站:线个纯新盘(图3)

  小区占地面积3.4万平,建筑面积8.2万平,容积率2.4,一共规划了10栋楼,8-15层。

  Pg电子官方网站 Pg电子娱乐

  周边配套也还不错,新宫这边有万达+大悦春风里的商业。到新宫地铁站大概1.3公里,距离不远也不近。

Pg电子网站:线个纯新盘(图4)

  洋房户型面积为100-136㎡三-四居,叠拼户型面积为179-218㎡,下叠有院子,上叠有阁楼。

  集中开工的46个项目中有31个与民生密切相关,覆盖交通、教育、医疗等方方面面。地铁1号线支线、合生汇、人大附等等。

  去年12月28日,中海拿下石景山北辛安667等地块,成交价56.1亿,楼面价4.48万/㎡,指导价7.8万/㎡,浮动±8%。

Pg电子网站:线个纯新盘(图5)

  地块建筑规模约33.36万平,住宅面积大概是12.3万平,仅占了总面积的三分之一多。

Pg电子网站:线个纯新盘(图6)

  除此之外,涵盖3个幼儿园、公交场站、海量的公建和无偿代建。作为北辛安片区最后一宗待开发地块,中海拿地毫无悬念。

  毕竟多如牛毛的无偿代建及如此高的地块总价,足以让90%的小开发商望尘莫及、自动退出了。

Pg电子网站:线个纯新盘(图7)

  ,周边还有北京九中初中部等。1号线号线线等串联起来的金安桥和苹果园两大交通枢纽,让板块的出行效率达到新高。

Pg电子网站:线个纯新盘(图8)

Pg电子网站:线个纯新盘(图9)

  ,朱辛庄又是地铁昌平线号线站直达西二旗, 这里有百度、快手、腾讯等互联网大厂。昌平线南延也已经开通,沿学院路向南,经过各大高校直达10号线西土城站。板块的其他配套也非常丰富,地块东南侧就是在建的

  ,建面约18万平的商业综合体。朱辛庄地铁站东侧是5万平的商业中心万科TBD,还有超级合生汇,配套确实不错。

Pg电子网站:线个纯新盘(图10)

  教育集团接管,该集团在朱辛庄区域管理的4所新校中有幼儿园2所,九年一贯制义务教育学校1所,十二年制学校1所。这个板块本身有产业,离海淀又近,配套又全,海淀够不上的话,朱辛庄依然是许多在海淀工作的购房者首选。

  华润置地重点是大红门、房山的两块新地,大红门自不必说,有中海和金茂做先例,品质必然会对齐甚至超越。房山这块地已经确定是润系,主打改善,要做一个房山的标杆作品。

  说实话,蛮期待华润的产品。中海、金茂都用的是最好的产品系,华润必然差不了。

Pg电子网站:线个纯新盘(图11)

  。板块九年一贯制的学校也定了,北京市丰台区教育委员会在相关文件中中提到,近期将启动木材厂西侧九年一贯制学校方案设计,建成后拟交由北京十二中办学,命名为

Pg电子网站:线个纯新盘(图12)

  佟麟阁学校建成后,中海和瑞叁号院、永定金茂府都将纳入该校入学服务范围。

  北京四环内的地块卖一块少一块,未来大红门或将成为下一个豪宅区,想买个不错的豪宅,这个值得等等。

Pg电子网站:线个纯新盘(图13)

Pg电子网站:线个纯新盘(图14)

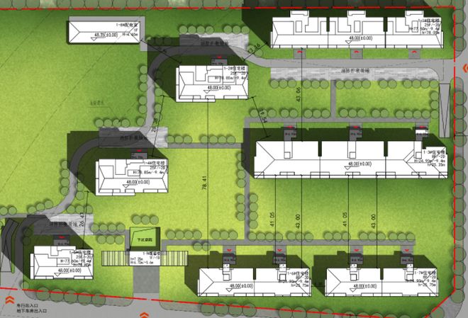
  根据设计方案显示,该项目预计分为南北两个区,共14栋,737户。其中北区6栋,8-11层,南区8栋,9-15层。

  ,预计2027年9月开学。东侧是北京理工大学,到龙湖天街不到2公里,散步遛弯就过去了。

  预算不高,想换个大房子,好房子的,这个绝对值得等等哦。我们马上会建立这个项目群,想进群聊最新动态,组团优惠的,

  这几年,中建各局在北京可以说是全面开花,到处都能看到中建的身影,尤其是三局,做的几个项目都卖的非常非常好。

  地块一共规划16栋楼,8-18层都有,南侧是一个金融用地,东侧是幼儿园。

Pg电子网站:线个纯新盘(图15)

  小区地上建筑面积111500㎡,算下来户型套均面积133㎡。按照指导价9.2万计算,套均总价1223万。

  相比中海郭公庄地块,两个项目的产品做了差异化,所以也不存在很大的竞争关系。

  地块位置没得说,双地铁口,丰台科技园板块,周边的交通条件、商业、医疗等配套资源都是非常好的。

Pg电子网站:线个纯新盘(图16)

  中建三局虽然进京时间不长,但是这两年在北京做的项目每一个都卖的非常好。

  新出的颐和公馆热度也非常高,这周六我们组织大家去看,离地铁4号线平都做的是南北通透,全明户型,

  交通方面,紧邻丰科路,往南是京良路,往东是京开高速,自驾约10分钟就可抵达丰台科技园、25分钟抵达丽泽商务区。

  商业方面,周边涵盖了万达广场、永旺梦乐城、荟聚、宜家家居、山姆会员店、花乡奥莱等多个大型商业综合体,开车去蛮方便的。

  教育方面,2023年8月30日,根据丰台教育微信公众号发布的,距离项目仅200m即为不久前刚刚纳入丰台五小教育集团的阳春小学,旁边还有一块教育用地,规划新增羊坊地块36班完全中学,占地面积约3.1公顷,引进知名优质学校办学。

Pg电子网站:线个纯新盘(图17)

  ,交通还是比较便利的。L42地块为纯住宅地块,用地面积约2.49万平米,建筑规模6.96万平米,容积率2.8。

  L44地块有一部分公建,总用地面积约3万平米,总建筑规模约9万平米,容积率3。

  ,预计未来也是以100平以上的改善产品为主。以上就是目前市场上已经拍地,但是还未入市的一些热门项目,大家有其他想了解的信息可以

  免责声明:本文对周边环境、政府规划、商业配套、教育配套、投资前景的介绍仅为提供相关信息,并不意味着对此作出任何承诺,买卖双方的权利义务以双方签订的《商品房买卖合同》为准。

  了!目前已有95421人入群,还在不断增加,群内新房八卦、房价走势热聊中...重点来了!加群有什么利好?1、获取项目最新

  手术花了60多万,怎么会这么贵?西安交大第一附属医院被患者家属举报后,查出26项违规问题

  劫囚案“江湖大嫂”口供曝光:布局4天劫囚救夫,通过加密通讯软件花1500美元买枪,提前租车踩点蹲守!柬警方辟谣“骚扰女嫌犯”

  4-0!U17国足亚预赛开门红 送十人巴林0射门 帅惟浩双响 万项传射

  徐念沙会长在2025广州汽车发展高峰论坛 开幕式上的讲线黑骑士版首发亮相

  卷完光源卷镜头!当贝X7 Max投影仪评测:纯三色激光已普及 镜头移轴新赛道出现!

  用户首发苹果M5 MacBook Pro现合盖噪音,Apple Store拒绝换货


023-67087896