PG电子(中国)官方网站-见证传奇诞生

2024武汉【中交澄园】中交澄园售楼处-楼盘详情-项目简介!-PG电子官方网站
PG电子(中国)官方网站-见证广安房地产传奇

咨询热线:

023-67087896

2024武汉【中交澄园】中交澄园售楼处-楼盘详情-项目简介!

发布时间:2024-08-19 09:30人气:

  中交集团所属中国交建在香港、上海两地上市,公司盈利能力和价值创造能力在全球同行中处于领先地位。截至目前,中国交建位居《财富》世界500强第63位。

  中交集团是国务院国资委直属的特大型中央企业,2018年位列世界500强第91位,是中国最大的港口设计及建设企业,世界领先的公路、桥梁设计及建设企业,世界第一疏浚企业,全球最大的集装箱起重机制造商,中国最大的设计公司。作为国资委批准的以房地产开发为主业的16家央企之一,中交集团开发房地产项目总建筑面积近3000万平方米。

  作为房地产专业子集团,地产集团负责中交集团房地产业务的运营和管理,业务涵盖房地产开发、资产运营管理、房地产金融等领域,国内重点布局京津冀、长三角、珠三角、成渝等地区,境外重点投资美国、马来西亚、印尼、肯尼亚等国家。

  Pg电子游戏官网 Pg平台

  Pg电子游戏官网 Pg平台

  位于青山区工业路与黄州接交汇处,处于青山核心板块,距离二环线公里,距离三环线环。享受整个青山的配套资源,商业、医疗、学校等都距离项目很近,尤其是北面的南干渠公园,过个马路就到,日常生活非常便捷。

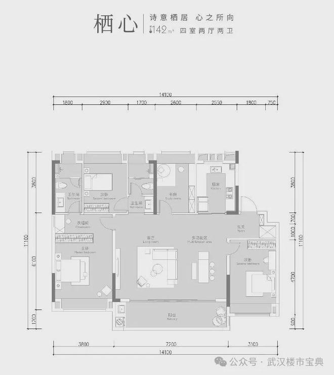
  每个功能区域都更大、更开阔,给家庭提供充足的空间感。南向三开间、约12.1米采光面和约29㎡LDK一体化宽厅设计都让整个户型拥有了明亮通透的生活氛围。同时,主卧、次卧、客厅等区域的设计都充分考虑了舒适性和实用性,给居住者提供了一个富有仪式感的奢居空间。

  这样的宽境洋房不仅在户型格局上十分舒适,同时也让人能够充分享受到采光和空气环境的升级。

2024武汉【中交澄园】中交澄园售楼处-楼盘详情-项目简介!(图1)

2024武汉【中交澄园】中交澄园售楼处-楼盘详情-项目简介!(图2)

  142平方米的宽境洋房,四室朝阳,室室观景,让风和光的边界无限拓宽,确实是一个拥有极致舒适生活体验的理想空间。14.1米超级巨幕南向面宽、约37㎡大宽厅聚场设计、奢适LDK会客横厅,以及主卧配置独立卫浴等设计,都为这个户型塑造了极致舒适的生活空间。

  武汉【中交澄园】售楼中心转接9999【24小时热线】免责声明:本宣传资料仅为要约邀请,对项目周边环境、交通、教育、商业及其它公共设施配套的介绍旨在提供相关参考,不意味着本公司作出了承诺,一切以政府相关部门最终批文及双方签订的买卖合同为准,部分图片素材来源于网络,如涉及侵权请联系我们立即删除。

  特别声明:以上内容(如有图片或视频亦包括在内)为自媒体平台“网易号”用户上传并发布,本平台仅提供信息存储服务。

  每天及时更新各大楼盘项目信息,本信息仅供参考,具体请以开发商或政府部门公布的信息为准

  哥大校长辞职;布朗大学对国际生实行Need-Blind政策 ...一周资讯

  三星“六感之神”电视战略发布会成功举行 发布绚幕激光投影仪新品LPU9D与LPU7D

  AMD X870新主板8月20日到来!PCIe 5.0、USB4成标配


023-67087896